lien bien facebook | lien bien google plus | lien bien twitter | lien bien Linkdin | Envoyer par e-mail Imprimer Quitter
Maison
TOULOUSE
530 000 HAI - Référence : 5

Maison TOULOUSE 530 000 HAI - Référence : 5

Description

TOULOUSE quartier BONHOURE / GUILHEMERY- A 800 mètres de l'avenue Camille Pujol - A 1,5 km du métro Jolimont - A 1,5 km de la Halle aux Grains.

MAISON T6 DE 155 M² AVEC STUDIO INDEPENDANT - GARAGE DOUBLE - TERRAIN DE 480 M² AVEC BOX

Emplacement privilégié pour cette maison individuelle T6 d'environ 155 m², au calme et proche des commodités, comprenant:
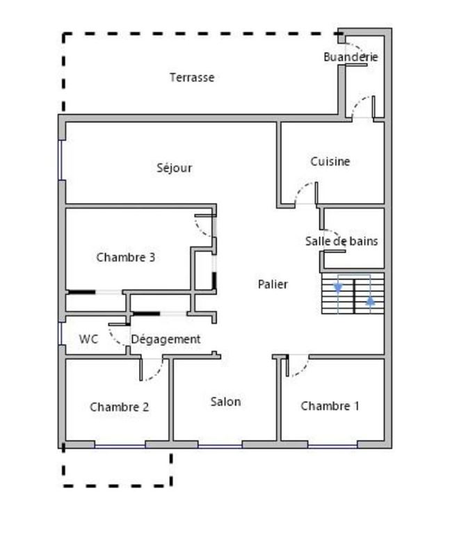
A l'étage: un hall d'entrée avec poêle à bois, un séjour, une cuisine indépendante aménagée, un cellier, trois chambres, un bureau ouvert,
une salle de bains, un wc et une terrasse d'environ 22 m².
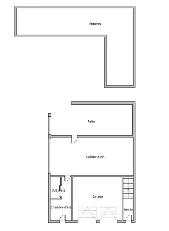
Au rdc: Un grande pièce vitrée d'environ 46 m², un studio avec accès indépendant d'environ 13 m² avec salle d'eau et wc, et un garage
double d'environ 30 m².
Terrain intimiste et piscinable d'environ 480 m² avec 7 box fermés ( un d'environ 46 m² et six d'environ 13 m).
Places de parking privatives.

Enorme potentiel pour cette propriété: possibilité de faire deux appartements, de faire un local professionnel en rdc, ou pour un artisan
ayant besoin de stockage.

Chauffage gaz de ville, poêle à bois, menuiseries double vitrages à l'étage et volets roulants électriques.
Prévoir un rafraichissement global, ainsi qu'une réactualisation de l'installation électrique.

Les honoraires sont à la charge de l'acquéreur:
-Prix net vendeur: 545 000 euros
- Honoraires d'agence: 15 000 euros

Les informations sur les risques auxquels ce bien est exposé sont disponibles sur le site Géorisque: www.georisque.gouv.fr

Date de réalisation du diagnostic énergétique: 12/12/2023
Montant estimé des dépenses annuelles d'énergie pour un usage standard: entre 1 890 euros et 2 610 euros par an.
Prix moyens des énergies indexés sur l'année 2021 (abonnement compris)

Informations
Référence : 5
Nombre de pièces : 6
Nombre de chambres : 4
Nb Etage : 1
Surface habitable : 155 m²
Surface jardin : 480 m²
Stationnement : Parking et Garage
Année de construction : 1962

NB :
Honoraires : 2.83% TTC à la charge de l'acquéreur
Prix de vente hors frais d'agence : 515000€.
Prestations
Surface terrasse : 22 m²
Terrasse : Oui
Proche commoditiés : Oui
Type de chauffage : Individuel Gaz
Tout à l'égout : Oui
État général : Travaux à prévoir
Détail des pièces
Etage: Hall d'entrée : 10.6 m²
Etage: Séjour : 19.1 m²
Etage: Cuisine : 9.7 m²
Etage: Cellier : 5.1 m²
Etage: Chambre 1 : 10 m²
Etage: bureau ouvert : 10.1 m²
Etage: Chambre 2 : 10.4 m²
Etage: Chambre 3 : 10.4 m²
Etage: Salle de bains : 3.6 m²
Etage: wc : 1.4 m²
Etage: Terrasse : 22 m²
Rdc: Pièce principale : 46 m²
Rdc: Studio : 10.5 m²
Rdc: Salle d'eau avec wc : 2.3 m²